✅ ポイント1:上質な住環境と利便性が調和した立地
代々木上原駅徒歩8分、東北沢駅徒歩7分と複数路線が利用でき、都心アクセスも良好でございます。落ち着いた街並みにありながら、生活利便施設も充実しており、静かさと便利さの両方を求める方におすすめの住環境でございます☆
✅ ポイント2:快適性を高める設備と居住性の高さ
33.5㎡の1LDKで全居室洋室の使いやすい間取りに加え、南面リビングと2面採光により明るさと開放感がございます。システムキッチンや浴室乾燥機、独立洗面台など生活を支える設備も整っており、快適にお過ごしいただけます!
✅ ポイント3:安心のセキュリティとお得な入居条件
オートロックやTVインターホンを備え、耐震・耐火構造のため安全性の高い建物仕様でございます。さらに現在は仲介手数料半額にてご紹介可能で、初期費用を抑えながら質の高い住環境を実現できる点も魅力となっております♪
パティーナV代々木上原について
お部屋の魅力まとめ
- 賃料18万5千円に管理費2万円が加わる条件でございます。敷金礼金ともに1ヶ月に加え償却金も1ヶ月発生いたしますが、人気の代々木上原エリアで分譲賃貸かつ最上階物件としては魅力的な費用設定となっております。
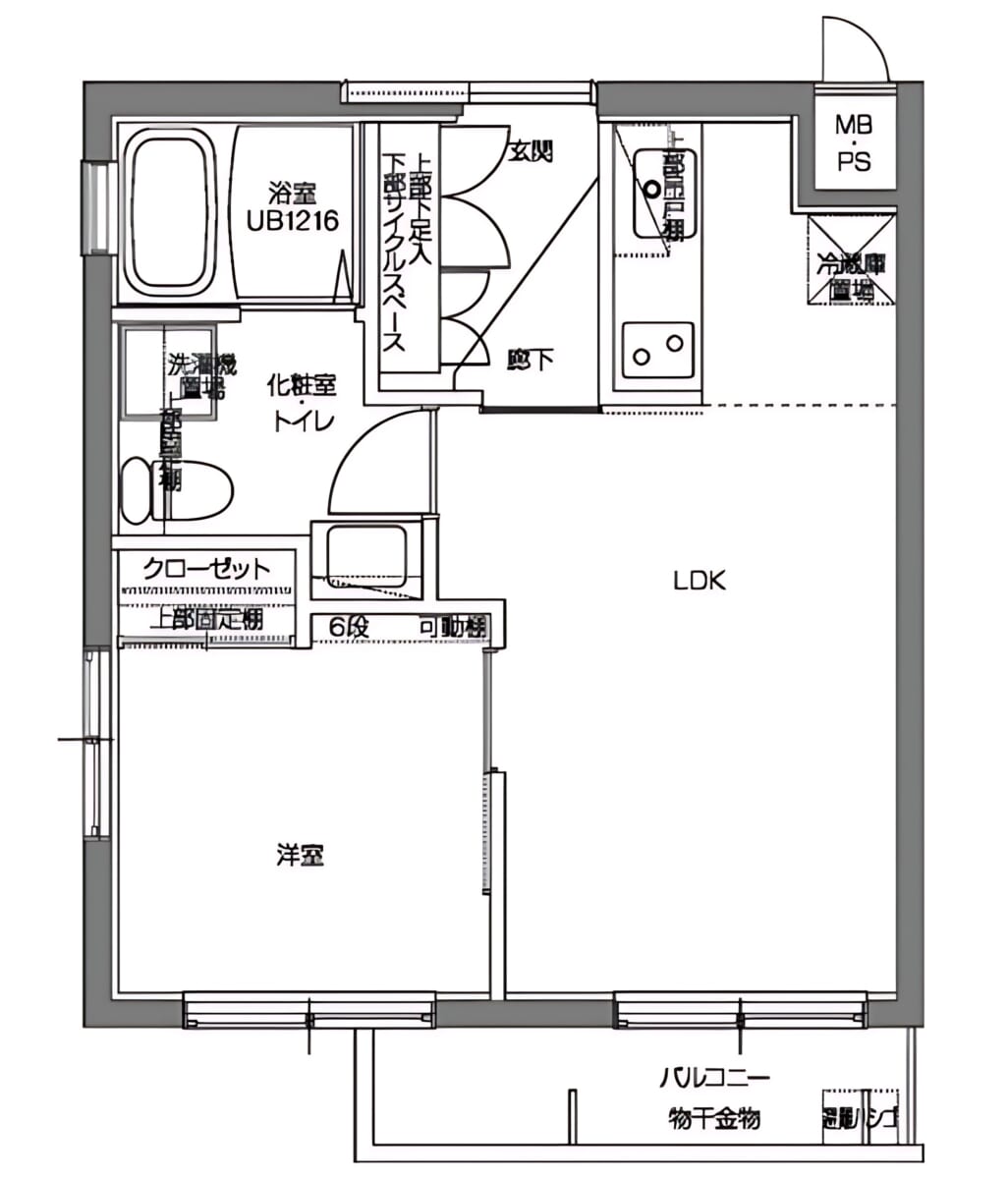
- 33.5㎡の1LDKで、単身から2人入居まで快適にお過ごしいただける住まいでございます。全居室洋室で活用しやすい間取りに加え、南面リビングと2面採光により、実際の広さ以上の開放感を感じていただけます!
- 代々木上原駅徒歩8分、東北沢駅徒歩7分、駒場東大前駅徒歩14分と3沿線3駅が利用可能でございます。都心主要エリアへの移動がスムーズで、通勤・通学やプライベートでも利便性の高い立地条件となっております。
- システムキッチンや独立洗面台、浴室乾燥機、温水洗浄便座など快適な設備が整っております。ネット使用料不要や収納豊富な仕様も魅力で、毎日の暮らしを便利にお過ごしいただける住空間となっております!
- オートロックやTVインターホンを備えており、防犯性に優れた建物でございます。耐震構造・耐火構造・外観タイル張りと安心感の高い建築仕様で、女性の単身者にもおすすめできるセキュリティ環境でございます☆
- 現在、仲介手数料半額にてご紹介可能でございます。初期費用の負担を抑えてご入居いただける大変お得な条件で、人気エリア物件を検討されている方に最適なタイミングとなっております!
- 閑静で品のある住宅街に位置し、人気の高い代々木上原上原エリアの魅力を感じられる環境でございます。眺望・陽当り・通風に優れた最上階住戸で、ペット相談や2人入居相談も可能な柔軟な受け入れ条件となっております♪
パティーナV代々木上原の参考賃貸情報(募集実績)
| 住所 | 東京都渋谷区上原3丁目 |
|---|---|
| 築年月 | 2017年3月(築8年) |
| 最寄り駅 | 千代田線「代々木上原」駅 徒歩8分 / 小田急小田原線「東北沢」駅 徒歩7分 / 京王井の頭線「駒場東大前」駅 徒歩14分 |
| 参考タイプ | 4階|1LDK|33.5㎡ |
| 参考条件 | 賃料185,000円|管理費20,000円 敷金1ヶ月|礼金1ヶ月|償却金1ヶ月 |
パティーナV代々木上原の主な特徴・設備








詳細は以下🔗リンクをクリック!
📍お問い合わせの際は【物件名】【参考賃料】【間取り】をお伝えください!
※募集状況は変動する可能性があります。気になる方はお早めに♪🐼💭
代々木上原駅 住みやすさ 総合評価
【総合評価:★★★★☆(4.4 / 5.0)】
代々木上原駅周辺は上質で落ち着いた雰囲気があり、治安の良さと洗練された街並みが高く評価されております!
生活利便性も高く、単身からカップル・ファミリーまで幅広い層に支持される人気の居住エリアでございます!
【交通アクセス】
千代田線と小田急線が利用でき、都心主要地へダイレクトにアクセス可能でございます!
乗り換え利便性も高く、通勤・通学や外出時にも快適な移動環境が整っております♪
【商業・生活利便性】
上質な飲食店や洗練されたショップが多く、落ち着いた大人の街として人気でございます☆
スーパーや日常生活に必要な店舗も充実しており、生活利便性の高い環境となっております!
【自然・環境】
駅周辺は閑静で穏やかな街並みが広がり、落ち着いた環境でお過ごしいただけます♪
緑の多い散策スポットも点在し、穏やかに暮らせる雰囲気がございます!
【医療・子育て】
医療機関が多数あり、安心して生活できる地域でございます!
教育環境にも定評があり、ファミリー層にも適した住環境となっております♪
全ての物件が仲介手数料無料〜仲介手数料半額以下保証でご紹介が可能です!
アブレイズ・コーポレーションでは、全ての物件を『仲介手数料無料~半額以下保証』でご紹介可能です!また、ご来店いただくと、より詳しくお客様のご予算やご条件に合った物件を、初期費用無料の見積もりをご覧いただきながら詳しくご紹介させていただきます!
なかなかお時間が取れない場合は、事前にメールやLINEのやり取りで物件を選定し、現地待ち合わせで物件を実際に見学することも可能です。またオンラインでも無料相談を受け付けていますので、お気軽にお問い合わせください♪
アブレイズ・コーポレーションはあなたの理想の物件探しを応援します!
お問合せ・ご相談はLINEでも受け付けております✨
お部屋も探せるアブレイズ・コーポレーション公式LINE友だち追加はこちら!
『アブレイズ学割』で学生さんはいつでもお得✨
FAQ
お店に行く前に準備しておくことはありますか?
希望のエリアや家賃、間取り、引越し時期、引越しにかかる費用などの条件をイメージし、どれが一番大事か優先順位を決めておくのがオススメです。あらかじめご連絡いただければ、ご希望に合った物件を事前にご用意してお待ちできますよ。
初期費用にはどんなものがありますか?
ご契約内容によって異なりますが、一般的には「前家賃(日割り+翌月分)」「共益費(日割り+翌月分)」「駐車場代」「敷金」「礼金」「仲介手数料」などがかかります。ただし、当社では全ての物件を『仲介手数料無料~半額以下保証』でご紹介可能です。
来店には予約が必要ですか?
ご予約なしでもご来店いただけますが、事前にご予約いただくとスムーズなご案内が可能です。特に混み合う時期は、ご予約のお客様を優先してご案内しております。
条件をどうやって絞ればいいですか?
ライフスタイルや希望の家賃、間取り、設備、交通アクセスなどをもとに、どこを重視するか考えてみましょう。条件がまとまらない場合も、お話を伺いながら一緒に整理しますのでご安心ください♪
他のネットで見つけた物件も「仲介手数料無料~半額以下保証」の対象になりますか?
はい、ネットなどで見つけたアブレイズ・コーポレーション掲載外の物件でも、当社でご紹介可能なものであれば、すべて「仲介手数料無料~半額以下保証」の対象となります。
気になる物件がございましたら、掲載の有無にかかわらずお気軽にお問い合わせください♪

