✅ ポイント1:方南町駅徒歩6分の好立地
丸ノ内方南支線「方南町」駅から徒歩6分の駅近物件です。さらに「代田橋」駅や「永福町」駅も徒歩圏内で、3沿線が利用可能。都心へのアクセスも良好で、通勤・通学はもちろん、休日の外出にも便利な立地です。落ち着いた住宅街にありながら利便性を兼ね備えた住環境です☆
✅ ポイント2:築浅×デザイナーズの快適空間
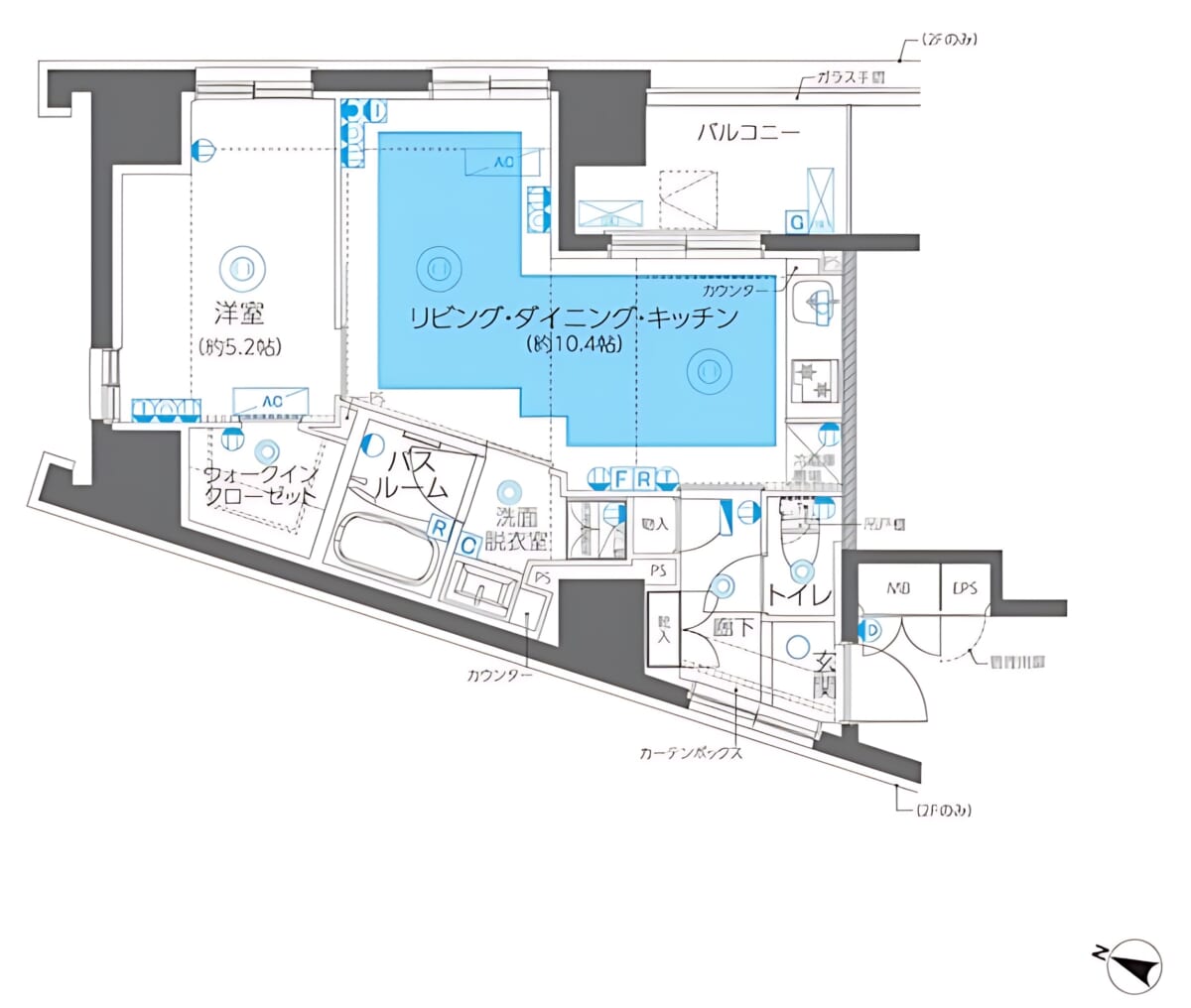
2024年築の築浅デザイナーズマンション。1LDK・40.87㎡の間取りは、開放感があり二人入居にも最適です。浴室乾燥機や追い焚き機能、オープンキッチンなど、最新の設備が揃い快適な生活をサポートします。ネット使用料無料で、在宅ワーク環境にも適した現代的な住まいです!
✅ ポイント3:安心の設備とお得なキャンペーン
オートロックや防犯カメラ、ダブルロックキーを完備し、安心感の高いセキュリティ設計です。さらに、現在は仲介手数料半額キャンペーンを実施中。初期費用を抑えて上質な暮らしを始められます。ペット相談可で、大切な家族と共に快適な毎日をお過ごしいただけます♪
ZOOM方南町について
お部屋の魅力まとめ
- 賃料は月額173,000円、管理費20,000円と新築同様の築浅デザイナーズとしては相応の価格帯です。敷金・礼金ともに1ヶ月で、安心してご契約いただけます。
- 1LDK・40.87㎡の間取りは、単身者から二人暮らしまで快適にお過ごしいただける広さです。開放感のある設計で、居住空間をゆったりと使えます!
- 丸ノ内方南支線「方南町」駅まで徒歩6分と駅近で通勤・通学に便利です。さらに「代田橋」駅や「永福町」駅も利用可能で、3沿線アクセスが可能な好立地です。
- 浴室乾燥機・追い焚き機能・オープンキッチンなど、日々の暮らしを快適にする設備が整っています。ネット使用料無料で、在宅ワークにも最適な環境です!
- オートロック・ダブルロックキー・防犯カメラを完備し、セキュリティ性の高い建物です。耐震・耐火構造で、安心して暮らせる住まいです☆
- 現在、仲介手数料半額キャンペーンを実施中です。初期費用を抑えつつ、築浅・高品質な住まいにお得に入居できる貴重なチャンスです!
- 方南町駅周辺にはスーパーや飲食店、カフェなどが充実しており、日常生活に便利です。緑豊かな環境も魅力で、ペットとの暮らしにも適しています♪
ZOOM方南町の参考賃貸情報(募集実績)
| 住所 | 東京都杉並区和泉1丁目 |
|---|---|
| 築年月 | 2024年6月(築1年) |
| 最寄り駅 | 丸ノ内方南支線「方南町」駅 徒歩6分 / 京王線「代田橋」駅 徒歩14分 / 京王井の頭線「永福町」駅 徒歩21分 |
| 参考タイプ | 7階|1LDK|40.87㎡ |
| 参考条件 | 賃料173,000円|管理費20,000円 敷金1ヶ月|礼金1ヶ月 |
ZOOM方南町の主な特徴・設備








詳細は以下🔗リンクをクリック!
📍お問い合わせの際は【物件名】【参考賃料】【間取り】をお伝えください!
※募集状況は変動する可能性があります。気になる方はお早めに♪🐼💭
方南町駅 住みやすさ 総合評価
【総合評価:★★★★☆(4.2 / 5.0)】
方南町駅は、静かな住宅街と利便性を兼ね備えた人気エリアです!
都心部へのアクセスが良く、暮らしやすい街並みが魅力です!
新しい建物が増え、若い世代にも支持されています!
【交通アクセス】
東京メトロ丸ノ内線方南支線の始発駅のため、通勤ラッシュ時でも座れる可能性が高いです!
新宿や東京駅方面へのアクセスも良好で、都心で働く方に人気のエリアです♪
【商業・生活利便性】
駅周辺には「サミットストア」や「方南銀座商店街」などがあり、日常の買い物に困りません☆
カフェや飲食店も増えており、生活の利便性が高い地域です!
【自然・環境】
神田川沿いや善福寺川緑地など、自然を感じられるスポットが近く、散歩やランニングに最適です!
穏やかな住宅街が広がり、静かで落ち着いた雰囲気があります!
【医療・子育て】
周辺には内科や小児科、歯科などのクリニックが揃い、医療面でも安心です!
保育園や小学校も徒歩圏内にあり、子育て世帯にも暮らしやすい環境です♪
全ての物件が仲介手数料無料〜仲介手数料半額以下保証でご紹介が可能です!
アブレイズ・コーポレーションでは、全ての物件を『仲介手数料無料~半額以下保証』でご紹介可能です!また、ご来店いただくと、より詳しくお客様のご予算やご条件に合った物件を、初期費用無料の見積もりをご覧いただきながら詳しくご紹介させていただきます!
なかなかお時間が取れない場合は、事前にメールやLINEのやり取りで物件を選定し、現地待ち合わせで物件を実際に見学することも可能です。またオンラインでも無料相談を受け付けていますので、お気軽にお問い合わせください♪
アブレイズ・コーポレーションはあなたの理想の物件探しを応援します!
お問合せ・ご相談はLINEでも受け付けております✨
お部屋も探せるアブレイズ・コーポレーション公式LINE友だち追加はこちら!
『アブレイズ学割』で学生さんはいつでもお得✨
FAQ
お店に行く前に準備しておくことはありますか?
希望のエリアや家賃、間取り、引越し時期、引越しにかかる費用などの条件をイメージし、どれが一番大事か優先順位を決めておくのがオススメです。あらかじめご連絡いただければ、ご希望に合った物件を事前にご用意してお待ちできますよ。
初期費用にはどんなものがありますか?
ご契約内容によって異なりますが、一般的には「前家賃(日割り+翌月分)」「共益費(日割り+翌月分)」「駐車場代」「敷金」「礼金」「仲介手数料」などがかかります。ただし、当社では全ての物件を『仲介手数料無料~半額以下保証』でご紹介可能です。
来店には予約が必要ですか?
ご予約なしでもご来店いただけますが、事前にご予約いただくとスムーズなご案内が可能です。特に混み合う時期は、ご予約のお客様を優先してご案内しております。
条件をどうやって絞ればいいですか?
ライフスタイルや希望の家賃、間取り、設備、交通アクセスなどをもとに、どこを重視するか考えてみましょう。条件がまとまらない場合も、お話を伺いながら一緒に整理しますのでご安心ください♪
他のネットで見つけた物件も「仲介手数料無料~半額以下保証」の対象になりますか?
はい、ネットなどで見つけたアブレイズ・コーポレーション掲載外の物件でも、当社でご紹介可能なものであれば、すべて「仲介手数料無料~半額以下保証」の対象となります。
気になる物件がございましたら、掲載の有無にかかわらずお気軽にお問い合わせください♪

