✅ ポイント1:目黒駅徒歩6分の好立地
山手線「目黒」駅から徒歩6分という抜群のアクセス環境が魅力です。東急目黒線「不動前」駅や「五反田」駅も徒歩圏内で、都心主要エリアへの通勤・通学に非常に便利です。ビジネスにもプライベートにも快適なロケーションで、都心でのアクティブな暮らしを支えます☆
✅ ポイント2:ゆとりある空間と上質な設備
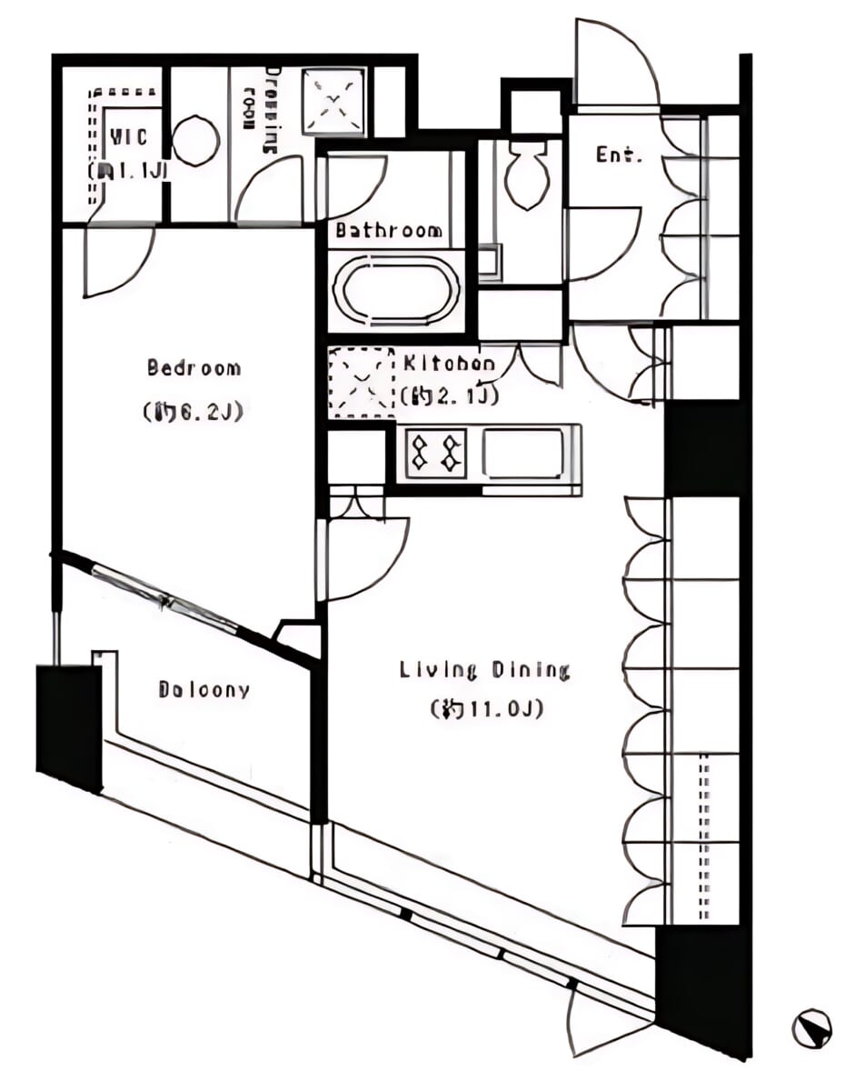
1LDK・52.3㎡の広々とした間取りは、単身者やカップルにも最適です。全居室フローリングで清潔感があり、カウンターキッチンや追い焚き機能付きバスルームなど、快適な暮らしを実現する設備が充実。収納スペースも豊富で、上質な日常をお楽しみいただけます!
✅ ポイント3:安心と快適を両立したタワーレジデンス
オートロックや防犯カメラ、ダブルロックキーなどセキュリティ面も安心。フロントサービスも備わり、ホテルライクな暮らしを実現します。現在、仲介手数料無料キャンペーン中で、コストを抑えつつ憧れのタワーマンションライフを始める絶好の機会です♪
パークキューブ目黒タワーについて
お部屋の魅力まとめ
- 敷金・礼金ともに1ヶ月と、初期費用を抑えつつ質の高い住環境を得られる点が魅力的です。ハイグレードなタワーマンションながらコストバランスに優れています。
- ゆとりある1LDK・52.3㎡の広さが魅力で、単身者から二人暮らしまで快適にお過ごしいただけます。家具のレイアウトもしやすく開放感のある空間です!
- 山手線「目黒」駅まで徒歩6分と利便性抜群です。東急目黒線・不動前駅や五反田駅も利用可能で、都心主要エリアへのアクセスもスムーズです。
- システムキッチンや浴室乾燥機、追い焚き機能など快適な暮らしを支える設備が充実。全居室フローリングで清潔感があり、収納も豊富です!
- オートロックやダブルロックキー、防犯カメラを完備し、フロントサービスもあるため防犯性・安心感ともに高水準の住まいです☆
- 現在、仲介手数料無料でご紹介中のため、初期費用をさらに軽減できます。人気エリアのタワーマンションをお得に契約できるチャンスです!
- 「目黒」駅周辺は商業施設や飲食店が豊富で、生活利便性が高いエリアです。緑豊かな目黒川沿いの散歩道も近く、都心ながら自然も感じられます♪
パークキューブ目黒タワーの参考賃貸情報(募集実績)
| 住所 | 東京都目黒区下目黒2丁目 |
|---|---|
| 築年月 | 2008年2月(築17年) |
| 最寄り駅 | 山手線「目黒」駅 徒歩6分 / 東急目黒線「不動前」駅 徒歩11分 / 山手線「五反田」駅 徒歩19分 |
| 参考タイプ | 4階|1LDK|52.3㎡ |
| 参考条件 | 賃料320,000円|管理費0円 敷金1ヶ月|礼金1ヶ月 |
パークキューブ目黒タワーの主な特徴・設備








詳細は以下🔗リンクをクリック!
📍お問い合わせの際は【物件名】【参考賃料】【間取り】をお伝えください!
※募集状況は変動する可能性があります。気になる方はお早めに♪🐼💭
目黒駅 住みやすさ 総合評価
【総合評価:★★★★☆(4.5 / 5.0)】
目黒駅は都心へのアクセスと落ち着いた住環境を兼ね備えた人気エリアです!
交通利便性・商業施設の充実度・自然の豊かさのバランスが良く、幅広い層から支持されています!
【交通アクセス】
山手線・目黒線・南北線・三田線が利用でき、主要エリアへの移動が非常にスムーズです!
渋谷や品川、恵比寿などへ10分圏内と、通勤にも最適な立地です♪
【商業・生活利便性】
駅直結の「アトレ目黒」や周辺の飲食店・スーパーが充実!
おしゃれなカフェやレストランも多く、日々の買い物から外食まで幅広く楽しめます!
【自然・環境】
目黒川沿いの桜並木や自然教育園など、緑豊かな環境が魅力です☆
都心でありながら四季を感じられる心地よい住環境が整っています!
【医療・子育て】
大学病院やクリニックも多く、医療体制が充実しています!
保育園・小学校も多く、共働き世帯にも住みやすい地域として人気です♪
全ての物件が仲介手数料無料〜仲介手数料半額以下保証でご紹介が可能です!
アブレイズ・コーポレーションでは、全ての物件を『仲介手数料無料~半額以下保証』でご紹介可能です!また、ご来店いただくと、より詳しくお客様のご予算やご条件に合った物件を、初期費用無料の見積もりをご覧いただきながら詳しくご紹介させていただきます!
なかなかお時間が取れない場合は、事前にメールやLINEのやり取りで物件を選定し、現地待ち合わせで物件を実際に見学することも可能です。またオンラインでも無料相談を受け付けていますので、お気軽にお問い合わせください♪
アブレイズ・コーポレーションはあなたの理想の物件探しを応援します!
お問合せ・ご相談はLINEでも受け付けております✨
お部屋も探せるアブレイズ・コーポレーション公式LINE友だち追加はこちら!
『アブレイズ学割』で学生さんはいつでもお得✨
FAQ
お店に行く前に準備しておくことはありますか?
希望のエリアや家賃、間取り、引越し時期、引越しにかかる費用などの条件をイメージし、どれが一番大事か優先順位を決めておくのがオススメです。あらかじめご連絡いただければ、ご希望に合った物件を事前にご用意してお待ちできますよ。
初期費用にはどんなものがありますか?
ご契約内容によって異なりますが、一般的には「前家賃(日割り+翌月分)」「共益費(日割り+翌月分)」「駐車場代」「敷金」「礼金」「仲介手数料」などがかかります。ただし、当社では全ての物件を『仲介手数料無料~半額以下保証』でご紹介可能です。
来店には予約が必要ですか?
ご予約なしでもご来店いただけますが、事前にご予約いただくとスムーズなご案内が可能です。特に混み合う時期は、ご予約のお客様を優先してご案内しております。
条件をどうやって絞ればいいですか?
ライフスタイルや希望の家賃、間取り、設備、交通アクセスなどをもとに、どこを重視するか考えてみましょう。条件がまとまらない場合も、お話を伺いながら一緒に整理しますのでご安心ください♪
他のネットで見つけた物件も「仲介手数料無料~半額以下保証」の対象になりますか?
はい、ネットなどで見つけたアブレイズ・コーポレーション掲載外の物件でも、当社でご紹介可能なものであれば、すべて「仲介手数料無料~半額以下保証」の対象となります。
気になる物件がございましたら、掲載の有無にかかわらずお気軽にお問い合わせください♪

