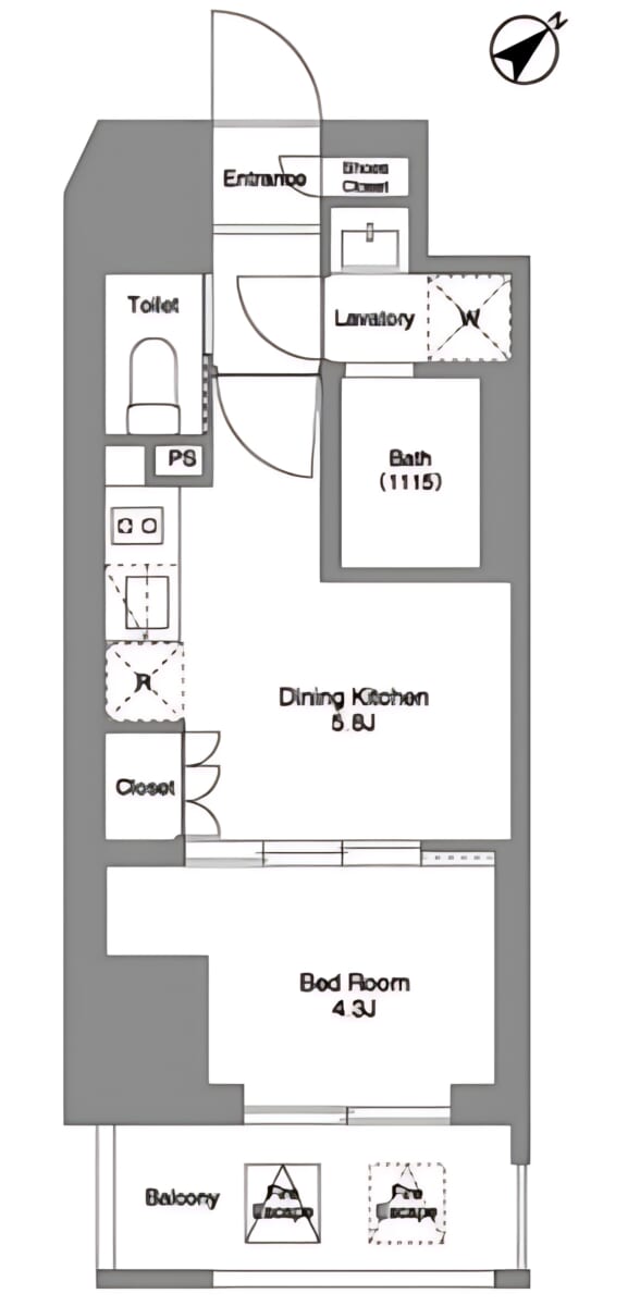
✅ ポイント1:暮らしやすさと機能性を両立した1DK
ルフォンプログレ大森山王は、25.89㎡の1DKタイプで、寝室とリビングを分けて使用できる使い勝手の良い間取りが特徴です。南向きバルコニーにより日当たりも良好で、毎日を心地よく過ごせます。システムキッチンや独立洗面台など、生活を快適にする設備も充実しています☆
✅ ポイント2:利便性と安心感に優れた立地
京浜東北線「大森」駅から徒歩9分の好立地に位置し、「平和島」駅や「西馬込」駅も利用可能。3沿線利用できるため、都心各地へのアクセスがスムーズです。周辺にはスーパーやカフェも点在し、日常の買い物にも困りません。治安の良い山王エリアで安心して暮らせます!
✅ ポイント3:築浅デザイン×充実したセキュリティ
2023年築のまだ新しい建物で、外観は高級感あるタイル貼り仕様。防犯カメラやオートロック、TVモニターホン完備でセキュリティ面も万全です。仲介手数料無料キャンペーン中のため、初期費用を抑えて入居できるのも魅力。安心と快適を兼ね備えた築浅賃貸です♪
ルフォンプログレ大森山王について
お部屋の魅力まとめ
- 敷金1ヶ月・礼金0ヶ月と初期費用を抑えて入居できる点が魅力です。月額126,000円に管理費15,000円で、築浅の1DK物件としては非常にバランスの取れた条件となっております。
- 専有面積25.89㎡の1DKタイプで、寝室とリビングを分けて使える機能的な間取りです。単身者の一人暮らしにちょうど良い広さで、家具の配置もしやすい設計となっています!
- 京浜東北線「大森」駅から徒歩9分の好立地に位置し、「平和島」駅や「西馬込」駅も利用可能です。3沿線3駅が使えるため、都内主要エリアへのアクセスも快適です。
- 浴室乾燥機や独立洗面台、システムキッチンなど最新設備を完備。南面バルコニーからの明るい日差しと通風の良さも魅力で、快適な暮らしをサポートします!
- オートロック、防犯カメラ、TVモニターホンを備えた安心のセキュリティ。耐震・耐火構造の設計で、安全性にも優れた住環境を実現しています☆
- 現在、仲介手数料無料でご紹介中です。初期費用を大幅に節約できるため、新生活をお得にスタートしたい方に最適なキャンペーンです!
- 閑静な住宅街「山王」エリアに立地し、落ち着いた住環境が魅力です。コンビニやスーパーも徒歩圏内に揃い、日常の買い物にも便利なロケーションです♪
ルフォンプログレ大森山王の参考賃貸情報(募集実績)
| 住所 | 東京都大田区山王3丁目 |
|---|---|
| 築年月 | 2023年4月(築2年) |
| 最寄り駅 | 京浜東北線「大森」駅 徒歩9分 / 京急本線「平和島」駅 徒歩21分 / 都営浅草線「西馬込」駅 徒歩26分 |
| 参考タイプ | 3階|1DK|25.89㎡ |
| 参考条件 | 賃料126,000円|管理費15,000円 敷金1ヶ月|礼金0ヶ月 |
ルフォンプログレ大森山王の主な特徴・設備









詳細は以下🔗リンクをクリック!
📍お問い合わせの際は【物件名】【参考賃料】【間取り】をお伝えください!
※募集状況は変動する可能性があります。気になる方はお早めに♪🐼💭
大森駅 住みやすさ 総合評価
【総合評価:★★★★☆(4.0 / 5.0)】
再開発が進む便利なエリアでありながら、落ち着いた住宅街も広がるバランスの取れた街です!
単身者からファミリーまで幅広い層に人気があります!
【交通アクセス】
京浜東北線で「品川」や「東京」方面へのアクセスが良好です!
羽田空港へもバスでスムーズに行けるため、出張や旅行が多い方にも便利な立地です♪
【商業・生活利便性】
駅直結の「アトレ大森」には飲食店やスーパー、ドラッグストアが充実☆
周辺には商店街もあり、日常の買い物や外食にも困りません!
【自然・環境】
駅から少し離れると閑静な住宅街が広がり、「しながわ区民公園」などの緑地も近く、自然を感じながら暮らせる環境です!
【医療・子育て】
医療機関やクリニックも多く、安心して暮らせます!
保育園・小学校も徒歩圏内にあり、子育て世帯にも人気のエリアです♪
全ての物件が仲介手数料無料〜仲介手数料半額以下保証でご紹介が可能です!
アブレイズ・コーポレーションでは、全ての物件を『仲介手数料無料~半額以下保証』でご紹介可能です!また、ご来店いただくと、より詳しくお客様のご予算やご条件に合った物件を、初期費用無料の見積もりをご覧いただきながら詳しくご紹介させていただきます!
なかなかお時間が取れない場合は、事前にメールやLINEのやり取りで物件を選定し、現地待ち合わせで物件を実際に見学することも可能です。またオンラインでも無料相談を受け付けていますので、お気軽にお問い合わせください♪
アブレイズ・コーポレーションはあなたの理想の物件探しを応援します!
お問合せ・ご相談はLINEでも受け付けております✨
お部屋も探せるアブレイズ・コーポレーション公式LINE友だち追加はこちら!
『アブレイズ学割』で学生さんはいつでもお得✨
FAQ
お店に行く前に準備しておくことはありますか?
希望のエリアや家賃、間取り、引越し時期、引越しにかかる費用などの条件をイメージし、どれが一番大事か優先順位を決めておくのがオススメです。あらかじめご連絡いただければ、ご希望に合った物件を事前にご用意してお待ちできますよ。
初期費用にはどんなものがありますか?
ご契約内容によって異なりますが、一般的には「前家賃(日割り+翌月分)」「共益費(日割り+翌月分)」「駐車場代」「敷金」「礼金」「仲介手数料」などがかかります。ただし、当社では全ての物件を『仲介手数料無料~半額以下保証』でご紹介可能です。
来店には予約が必要ですか?
ご予約なしでもご来店いただけますが、事前にご予約いただくとスムーズなご案内が可能です。特に混み合う時期は、ご予約のお客様を優先してご案内しております。
条件をどうやって絞ればいいですか?
ライフスタイルや希望の家賃、間取り、設備、交通アクセスなどをもとに、どこを重視するか考えてみましょう。条件がまとまらない場合も、お話を伺いながら一緒に整理しますのでご安心ください♪
他のネットで見つけた物件も「仲介手数料無料~半額以下保証」の対象になりますか?
はい、ネットなどで見つけたアブレイズ・コーポレーション掲載外の物件でも、当社でご紹介可能なものであれば、すべて「仲介手数料無料~半額以下保証」の対象となります。
気になる物件がございましたら、掲載の有無にかかわらずお気軽にお問い合わせください♪

