✅ ポイント1:渋谷・表参道を使いこなす都心立地
渋谷駅・表参道駅ともに徒歩8分という利便性の高い立地が最大の魅力でございます。複数路線を自在に使い分けられるため、都内主要エリアへのアクセスが良好で、通勤・通学はもちろん、ショッピングや外食も快適に楽しめる住環境です☆
✅ ポイント2:高層階×築浅×充実設備
2014年築の洗練された外観と、12階部分ならではの眺望が魅力でございます。浴室乾燥機や独立洗面台、オープンキッチンなど、都市生活に求められる設備が揃っており、快適で質の高い暮らしを実現できます!
✅ ポイント3:安心のセキュリティとお得な条件
オートロックやTVインターホンを完備し、防犯面にも配慮されております。さらに仲介手数料半額キャンペーン対象のため、初期費用を抑えつつ、人気の表参道エリアにお住まいいただける点も大きな魅力です♪
NJK MARQUIS OMOTESANDOについて
お部屋の魅力まとめ
- 渋谷・表参道エリアという都心一等地に立地しながら、賃料158,000円、管理費10,000円と条件のバランスが取れております。築浅・高層階・充実設備を考慮すると、資産性と居住性を兼ね備えた魅力的な賃料設定でございます。
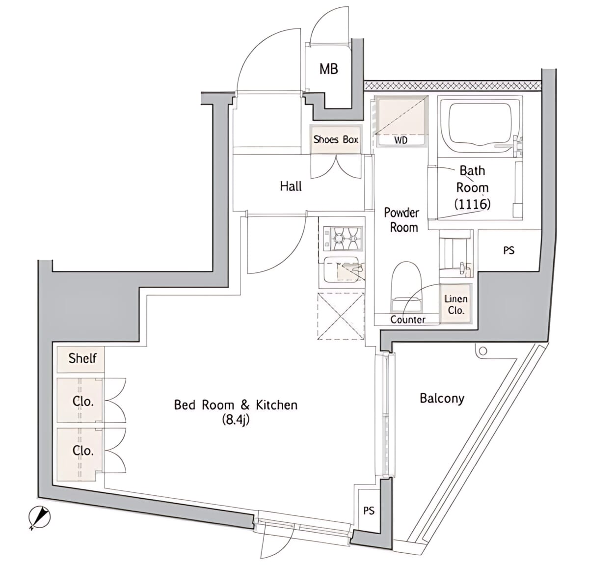
- 1Rタイプ25.05㎡の間取りは、居室空間を無駄なく活用できる設計となっております。2面採光により開放感があり、単身者様でも家具配置がしやすく、快適な都市型ライフを実現できる広さでございます!
- 東急東横線「渋谷」駅、千代田線「表参道」駅まで徒歩8分と、都内屈指のターミナル・人気駅が利用可能でございます。さらに山手線「原宿」駅も徒歩圏内で、通勤・通学・休日のお出かけにも大変便利な立地です。
- システムキッチンやバストイレ別、独立洗面台、浴室乾燥機など、日々の生活を快適にする設備が充実しております。ネット専用回線やBS・CSにも対応しており、在宅時間も充実した住環境が整っております!
- オートロックやTVモニター付インターホンを備え、防犯面にも配慮されたマンションでございます。耐震・耐火構造を採用しており、都市部での生活でも安心してお住まいいただける点が魅力です☆
- 本物件は仲介手数料半額キャンペーン対象となっており、初期費用を大幅に抑えてご契約いただけます。都心築浅マンションをお得にご紹介できる、非常に希少な条件でございます!
- 渋谷・表参道エリアならではの洗練された街並みと、落ち着いた住環境を両立しております。高層階につき眺望・通風も良好で、都心にいながら心地よい暮らしを実感していただけます♪
NJK MARQUIS OMOTESANDOの参考賃貸情報(募集実績)
| 住所 | 東京都渋谷区渋谷2丁目 |
|---|---|
| 築年月 | 2014年9月(築11年) |
| 最寄り駅 | 東急東横線「渋谷」駅 徒歩8分 / 千代田線「表参道」駅 徒歩8分 / 山手線「原宿」駅 徒歩20分 |
| 参考タイプ | 12階|1R|25.05㎡ |
| 参考条件 | 賃料158,000円|管理費10,000円 敷金1ヶ月|礼金1ヶ月 |
NJK MARQUIS OMOTESANDOの主な特徴・設備









詳細は以下🔗リンクをクリック!
📍お問い合わせの際は【物件名】【参考賃料】【間取り】をお伝えください!
※募集状況は変動する可能性があります。気になる方はお早めに♪🐼💭
渋谷駅 住みやすさ 総合評価
【総合評価:★★★★☆(4.5 / 5.0)】
都内最大級のターミナル駅として圧倒的な利便性を誇り、生活・交通・娯楽のすべてが揃ったエリアでございます!
人の多さはございますが、それを上回る利点がある駅です!
【交通アクセス】
JR山手線をはじめ、東急線・東京メトロ・私鉄各線が集結しており、都内主要エリアへの移動が非常にスムーズでございます!
乗り換えの選択肢も多く、通勤・通学の利便性は抜群です♪
【商業・生活利便性】
大型商業施設や飲食店、スーパー、ドラッグストアが充実しており、日常生活から休日の買い物まで不自由がございません☆
流行の発信地として常に活気のある街並みが魅力です!
【自然・環境】
代々木公園や明治神宮など、徒歩圏内に自然を感じられるスポットもございます!
都心でありながら、気分転換や散策を楽しめる環境が整っております!
【医療・子育て】
総合病院やクリニックが多数点在しており、医療面でも安心感がございます!
教育施設も揃っており、単身者様から将来的なライフステージの変化にも対応できるエリアです♪
全ての物件が仲介手数料無料〜仲介手数料半額以下保証でご紹介が可能です!
アブレイズ・コーポレーションでは、全ての物件を『仲介手数料無料~半額以下保証』でご紹介可能です!また、ご来店いただくと、より詳しくお客様のご予算やご条件に合った物件を、初期費用無料の見積もりをご覧いただきながら詳しくご紹介させていただきます!
なかなかお時間が取れない場合は、事前にメールやLINEのやり取りで物件を選定し、現地待ち合わせで物件を実際に見学することも可能です。またオンラインでも無料相談を受け付けていますので、お気軽にお問い合わせください♪
アブレイズ・コーポレーションはあなたの理想の物件探しを応援します!
お問合せ・ご相談はLINEでも受け付けております✨
お部屋も探せるアブレイズ・コーポレーション公式LINE友だち追加はこちら!
『アブレイズ学割』で学生さんはいつでもお得✨
FAQ
お店に行く前に準備しておくことはありますか?
希望のエリアや家賃、間取り、引越し時期、引越しにかかる費用などの条件をイメージし、どれが一番大事か優先順位を決めておくのがオススメです。あらかじめご連絡いただければ、ご希望に合った物件を事前にご用意してお待ちできますよ。
初期費用にはどんなものがありますか?
ご契約内容によって異なりますが、一般的には「前家賃(日割り+翌月分)」「共益費(日割り+翌月分)」「駐車場代」「敷金」「礼金」「仲介手数料」などがかかります。ただし、当社では全ての物件を『仲介手数料無料~半額以下保証』でご紹介可能です。
来店には予約が必要ですか?
ご予約なしでもご来店いただけますが、事前にご予約いただくとスムーズなご案内が可能です。特に混み合う時期は、ご予約のお客様を優先してご案内しております。
条件をどうやって絞ればいいですか?
ライフスタイルや希望の家賃、間取り、設備、交通アクセスなどをもとに、どこを重視するか考えてみましょう。条件がまとまらない場合も、お話を伺いながら一緒に整理しますのでご安心ください♪
他のネットで見つけた物件も「仲介手数料無料~半額以下保証」の対象になりますか?
はい、ネットなどで見つけたアブレイズ・コーポレーション掲載外の物件でも、当社でご紹介可能なものであれば、すべて「仲介手数料無料~半額以下保証」の対象となります。
気になる物件がございましたら、掲載の有無にかかわらずお気軽にお問い合わせください♪

